Používame cookies

Súbory cookie a ďalšie technológie sledovania používame na zlepšenie vášho zážitku z prehliadania našich webových stránok, na to, aby sme vám zobrazovali prispôsobený obsah a cielené reklamy, na analýzu návštevnosti našich webových stránok a na pochopenie toho, odkiaľ naši návštevníci prichádzajú. Viac info

 

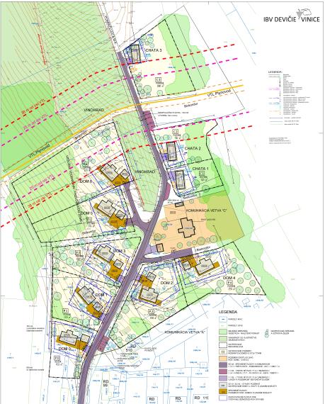
PREDANÉ! Projekt Devičie Vinice

Ulica: Devičie
Obec: Devičie
Okres: Krupina
Kraj: Banskobystrický kraj
Druh: Developerské projekty
Typ: Predaj
Typ projektu: Výstavba domov
54 900 €
Možná dohoda

Popis developerského projektu

Red Hill Real ponúka exkluzívne na predaj dva posledné stavebné pozemky pre výstavbu rodinných domov  v lokalite Devičie Vinice. Pozemky sa nachádzajú na okraji obce, priamo pri známom vinohrade PAPILLON. Pozemky sú slnečné s majestátnym výhľadom na okolité hory a obec v pokojnej a tichej lokalite.


POZEMOK: Rozloha pozemku je 2369 m2, pozemok je mierne svahovitý, nachádza sa v intraviláne obce. Projekt Devičie Vinice disponuje kompletnou infraštruktúrou v podobe rozšírenia NN elektrickej siete. Elektrická sieť je vedená zemou, takže žiadne stĺpy elektrického vedenia vám nebudú narúšať krásne výhľady na okolitú prírodu. Cestné komunikácie sa aktuálne rozširujú na dvojprúdové a samozrejmosťou je verejné osvetlenie pozdĺž cestných komunikácií, ktoré je obecné a funkčné. 

RODINNÝ DOM: Pozemok je stavebný s vydaným právoplatným územným rozhodnutím na rodinný dom, garáž a oplotenie. Kupujúci tak môže okamžite začať stavať nehnuteľnosť. V prípade záujmu je možné zrealizovať výstavbu, záujemca môže odkonzultovať osobitné podmienky aj cenu nehnuteľnosti. V galérií sa nachádzajú vizualizácie konkrétneho Rodinného domu v tradičnom Hontianskom štýle vo vysokom štandarde.


LOKALITA: Pozemok sa nachádza v obci Devičie, ktoré je len 7 km vzdialené od okresného mesta Krupina, kde sa nachádza kompletná občianska vybavenosť. V obci sa nachádza obchod a reštaurácia. Obec je situovaná v blízkosti prírodných rezervácií a turistických trás, čo ponúka množstvo možností pre aktívny životný štýl a oddych v prírode.

IS: Elektrická prípojka na pozemku, príjazdová asfaltová cesta, pitná voda sa bude riešiť vŕtanou studňou (po dohode vie developer realizovať). Kanalizácia je riešená žumpou.

POSLEDNÉ DVA VOĽNÉ POZEMKY ZO ŠIESTICH!

  1. S rozlohou 2325 m2 (79.050 EUR)
  2. S rozlohou 2369 m2 (80.564 EUR)

V prípade záujmu o obidva pozemky spolu (4694 m2), je dohoda na cene možná.

Nezmeškajte túto jedinečnú prípežitosť získať pozemok v krásnej obci Devičie. Navštívte nás alebo nás kontaktujte ešte dnes!


Realitná kancelária RED HILL REAL je členom Realitnej únie SR a riadi sa jej Realitným kódexom. Uvedená cena je konečná, zahŕňa províziu realitnej kancelárie, právny servis zabezpečovaný advokátskou kanceláriou, úhradu základného správneho poplatku na katastri, poradenstvo k prevodu nehnuteľnosti a bezplatnú ponuku financovania prostredníctvom hypotéky.

Zoznam objektov

Číslo
Počet izieb
Poschodie
Celková plocha
Stav
Cena
 
Číslo:
Počet izieb:
Poschodie:
Celková plocha: 2325 m2
Stav: aktívne
Cena: 54 900 € Možná dohoda
Číslo:
Počet izieb:
Poschodie:
Celková plocha: 1722 m2
Stav: rezervované
Cena: -
Číslo:
Počet izieb:
Poschodie:
Celková plocha: 2325 m2
Stav: aktívne
Cena: -
Číslo:
Počet izieb:
Poschodie:
Celková plocha: 3100 m2
Stav: rezervované
Cena: -
Číslo:
Počet izieb:
Poschodie:
Celková plocha: 2369 m2
Stav: aktívne
Cena: -
Číslo:
Počet izieb:
Poschodie:
Celková plocha: 2759 m2
Stav: rezervované
Cena: -
Číslo:
Počet izieb:
Poschodie:
Celková plocha: 2716 m2
Stav: rezervované
Cena: -
Číslo:
Počet izieb:
Poschodie:
Celková plocha: 5217 m2
Stav: rezervované
Cena: -

Vlastnosti

Status:
aktívne
Vlastníctvo:
osobné
Celková plocha:
2325 m2
Orientácia:
juh
Inžinierske siete:
áno
Voda:
áno
Elektrika:
áno
Voda - na pozemku:
áno
Voda - na pozemku - studňa:
áno
Elektrika - na pozemku:
áno
Elektrika - na pozemku - 230 V:
áno
Elektrika - na pozemku - 380 V:
áno

Informatívna úverová kalkulačka

Pozrieť na mape

Maklér

Radi Vám poradíme

Podobné nehnuteľnosti